7. Juni 2019

Das gab’s wohl noch nie im Vereinsheim der SG Schützenlisl an der Engschalkinger Straße: Der Saal war brechend voll, mehr als 150 Personen drängten sich im Saal, die Stühle waren alle besetzt, am Raumrand standen die Menschen. Der Anlass: Die „Bürgerwerkstatt“ des >Real Estate Investors< „6B47 Germany“ mit Sitz in Düsseldorf – Werbeslogan „Die etwas andere Art Immobilien zu entwickeln“ – zum geplanten Neubau des Komplexes Freischützgarten an der Ecke Johannes­kirchner Straße 98-100 / Freischützstraße 75-81.

Anders als in dem vom Veranstalter präsentiertem Programmablauf entwickelten sich adäquat zur tropisch-feuchten Luft in der Halle hitzige, teils emotional geführte Debatten mit „Kreuz-und-quer-Äußerungen“ der Anwesenden, die mit unterschiedlichen Aspekten argumentierten. Erst eine Bestandsaufnahme, ein Mini-Meinungsbild im letzten Teil des Workshops – viele Besucher waren bereits gegangen – hatte konstruktive Ansätze.

Fazit: Abriss der Häuser, jegliche Neubauten, vor allem der acht Stockwerke hohe Wohnturm als Pendant zum gegenüberliegenden Tower – das alles wurde nahezu einstimmig abgeschmettert. Ebenso einhellig wurde gefordert, die Sanierung der Bestandsgebäude nicht nur zu prüfen, sondern auch durchzuführen. Aus Sicht von Fachleuten ein Unterfangen – vor allem im Innenbereich bezüg­lich Fluren, Treppenhäusern und Aufzugsanlagen. Und für jeden vor Ort sichtbar: Der mehr als 30 Jahre alte, grau-schmutzige Komplex – die Zugänge in die Häuser sind zwischenzeitlich abgesi­chert – wirkt mangels Investitionen der Vorbesitzer in der Vergangenheit ziemlich verwahrlost.

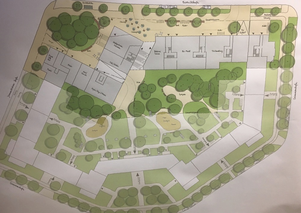
Aufsicht des geplanten neuen Freischützgartens mit Grünanlagen: Grau die Neubauten, hell die rückwärtigen und am Rand befindlichen Bestandsgebäude, dazwischen der begrünte Innenhof. Oben die Freischütz-, links die Johanneskirchner Straße, am Eck der Vorplatz mit der bestehenden Baumgruppe. Plan: Landschaftsarchitekten Jühling & Partner; Foto: hgb

Auswirkung: Die „Bürgerwerkstatt“ erwies sich folglich als eine vertane Chance, um einen Lösungsansatz zu finden.

Perspektive: Am Dienstag, 11. Juni, 19.30 Uhr, Gehörlosenzentrum an der Lohengrinstraße, behandeln die Mitglieder des Kommunalparlaments zur Sache ein Bürgeranliegen und nehmen Stellung zur Verlängerung des von der Lokalbaukommission (LBK) erlassenen Vorbescheids.

Möglichkeit: Die Lokalpolitiker werden dann eventuell auf Basis der Workshop-Berichte von Angeli­ka Pilz-Strasser (Bezirksausschuss-Vorsitzende; Grüne) und Xaver Finkenzeller (CSU-Fraktions­sprecher und Vize-Chef des Planungsausschusses) Empfehlungen für das Kommunalparlament formulieren, das sich am Dienstag, 11. Juni, 19.30 Uhr im Gehörlosenzentrum berät.

Meinung: Zum Experten-Unterfangen Sanierung beschrieb ein Mann, geschätzt an der Altersgren­ze zur Rente – „mein Name spielt keine Rolle, ich wohne in Bogenhausen“ – im Zwiegespräch vor dem Eingang des Schützenhauses die Sachlage aus seiner Sicht: „Wenn man ein Auto 30 Jahre lang nicht wäscht, keinen Service, keinen Öl- und Bremsölwechsel macht, wenn man die Bremsklöt­ze nie erneuert hat, wenn nie neue Reifen aufgezogen, Dellen und Kratzer nicht ausgebessert wurden, dann verrostet und vergammelt halt die Karre. Der Oldtimer ist dann einfach kaputt. Man kann ihn zwar noch mit viel Geld und Geduld herrichten, doch der Aufwand lohnt sich sicherlich nicht. Und dann ist da ja noch der TÜV. Bei einem Verkauf würden die Kosten wohl kaum erlöst, von einem Gewinn mal ganz abgesehen.“

Ein Wortbild, das wie die Faust aufs Auge der bestehenden Freischützgarten-Situation passt.

Die leerstehenden, nunmehr verwahrlosten Häuser des Gebäudekomplexes entlang der Freischützstraße. Foto: hgb

Hintergrund I: Im Mai 2018 hat die „6B47“ – Geschäftsführer ist Kai-Uwe Ludwig, vormals bei der Bayerischen Hausbau tätig und somit Kenner von Bogenhausen – die Anlage auf rund 10 000 Qua­dratmeter Fläche in Johanneskirchen von der Munich Residential GmbH (MR) erworben, die ihrer­seits den Trakt im April 2016 gekauft hatte.

Das Unternehmen will nun den Bestand abreißen, dort ohne die bestehenden Geländeabstufungen Neubauten sowie ein achtstöckiges Eckgebäude wie gegenüber an der Kreuzung mit einem nunmehr vergrößerten Innenhof errichten, etwa 15 Gewer­beeinheiten und 140 bis 160 Wohnungen schaffen.

Und zwar Ein-Zimmer-Wohnungen mit circa 45 bis 50 Quadratmeter bis zu Vier-Zimmer-Wohnungen mit 90 bis 100 Quadratmeter Fläche.

Hintergrund II: Im Oktober hatte der Bezirksausschuss „die städtebauliche Situation kritisch“ be­urteilt, hatte die präsentierte Eckbebauung abgelehnt, hatte sich gegen eine Befreiung vom beste­henden Bebauungsplan ausgesprochen, hatte ein „Bauleitplanverfahren für die beabsichtigten Maßnahmen als unabdingbar“ erachtet. Robert Brannekämper, Vize-Vorsitzender des Stadtteil­gremiums, Planungsausschuss-Chef und CSU-Landtagsabgeordneter, hatte seinerzeit erklärt: „Mit einer Befreiung funktioniert das hier wohl nicht.“ Gleichwohl hatte die Lokalbaukommission (LBK) im Planungsreferat bereits einen Vorbescheid – Aufstockung vierte Etage und Dachgeschoss, Nutzungsänderung von Büro in Wohnen für das erste und zweite Stockwerk – erlassen.

Hintergrund III • Nach den Einwendungen und den Anregungen der Stadtteilvertreter hatte der Konzern im März einen angepassten Entwurf vorgestellt. Die Lokalpolitiker waren angetan, stimm­ten den Plänen – unter Vorbehalt – zu. Brannekämper: „Es ist erfreulich, dass unsere Kritik berück­sichtigt worden ist. So wie es jetzt ausschaut, kann’s ja nicht bleiben.“ Finkenzeller hatte bei der Präsentation gemeint: „Das ist gelungen, ist überzeugend, eine gute Kombination.“ Eine mögliche Befreiung vom seit 1985 bestehenden Bebauungsplan wurde in einem Beschluss verankert – mit Bedingungen: Fassaden- und Grünflächenworkshop unter Beteiligung des Bezirksausschusses, eine Bürgeranhörung und Vorlage der Fassaden- und Freiflächengestaltung sowie Visualisierung zur Entscheidung.

Etwa 150 Anwohner kamen zur „Bürgerwerkstatt“ des Bauträgers zum geplanten Neubau des Komplexes Freischützgarten an der Ecke Johanneskirchner – / Freischützstraße in den Saal der SG Schützenlisl in Englschalking. Foto: hgb

Klarstellung: „Wir haben bisher weder Ja noch Nein zu dem Projekt gesagt, wir wollen ihre Meinungen hören, uns ein Bild machen, dann beraten und entscheiden“, so Finkenzeller eingangs bei der „Bürgerwerkstatt“.

Zeitplan: Im vierten Quartal 2019 soll’s losgehen – so hat es die „6B47“ einmal angedacht. Realis­tisch? Wohl mehr als fraglich. Zuerst muss das Vorhaben durch die Instanzen, müssen die städti­schen Genehmigungen vorliegen, die Pläne ausgearbeitet werden. Für den Abriss des Bestands kalkuliert Projektleiter André Schubert mit etwa sechs Monaten, für den Neubau mit zweieinhalb Jahren. Die von einem Anwohner („ich bin für eine Sanierung“) geäußerte Bauzeit von fünf Jahren verwarf Schubert als unrealistisch. Ebenso monierte „Hotel ähnliche Nutzungen“

Bürgerwerkstatt“: Für die verlangte Bürgeranhörung engagierte Schubert mit Christian Hörmann von der Beratungsgesellschaft Cima einen Moderator: „Sagen Sie, was gut ist, sagen Sie, was Sie nicht gut finden, sagen Sie ihre Befürchtungen. Bitte stellen Sie keine >Killerfragen< nach dem Mot­to >das haben wir noch nie so gemacht<, bitte sprengen Sie damit nicht das Format.“ Dafür hatte Hörmann dann aber selbst gesorgt. Bei Schuberts „Basisinformationen“ reagierte er prompt auf Äußerungen der Besucher, ließ Fragen, Statements, Vorwürfe, Proteste und „Kreuz-und-quer-Gere­de“ zu. Die Runde war aus dem Ruder gelaufen.

Rettungsversuch: „Bewahren Sie ein Stück Realitätsbewusstsein. Denn Realität ist: Vieles wird von der Stadt wegen der Wohnraumnot per Befreiung (auch) gegen den Willen des Bezirksaus­schusses genehmigt. Die Stadt wird keinen neuen Bebauungsplan machen. Eine Befreiung können wir uns vorstellen, aber nicht von oben nach unten, sondern erstmals andersherum, wenn sie näm­lich mitmachen“, appellierte Pilz-Strasser an die Anwohner.

Und Finkenzeller: „Schreiben Sie bitte alles auf die ausliegenden Workshop-Karten, dann wird vieles klarer, dann haben wir Unterlagen.“ Er erinnerte dabei an den „Reinfall“ bei der Befragung zur Städtebaulichen Entwicklungsmaßnahme (SEM) im Nordosten: Die Kärtchen waren verschwunden und später war geäußert worden, dass man das nicht gefordert oder abgelehnt hätte.

So gab’s dann schließendlich wenigstens das eingangs erwähnte Mini-Meinungsbild. Die laut Pro­gramm beabsichtige Werkstatt-Phase, die „rotierenden Arbeitsgruppen an drei verschiedenen Themeninseln“, die „Ergebnissicherung“ der Arbeitsgruppen – alles unerfüllte Punkte. Daher plä­dierte Pilz-Strasser für eine erneute Veranstaltung mit Vertretern des Bauträgers und der Eigen­tümergemeinschaft der etwa 150 angrenzenden Wohnungsbesitzer, „um die Schnittstellen zu fin­den, wie eine gute Nachbarschaft funktionieren könnte.“ Ob’s zu einer Verständigung kommt? Abwarten!